This Project involved significant renovations
before the kitchen design phase,including
moving a wall and obtaining permits for electrical
and ventilation for range hood.
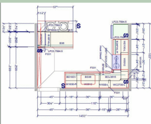
To save cost for the clients as they asked ,I keot
the cabinets on one side of the kitchen(kitchen
sink elevation) and design additional cabinets to
match excisting ones.
Door Material : Thermofoil
Countertop : Laminate
Before:

Design:

After:

Floor plan:


