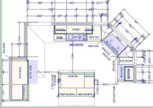
Regarding This project I should mention that the
client changed the appliances to include a cooktop
and wall oven in the same location. extending up
the upper cabinets and attaching them to the
ceiling was another features they requested.
it is to be noted that, due to the height of the OTR
we had to shift up the uppre cab by 1″ to comply
with building code regulations for fire protection.
Door Material: Maple
Countertop : Quartz
Before:

After:

Floor plan:


